Evakuācijas plāni
Drošība bez kompromisiem – profesionāli evakuācijas plāni un ugunsdzēsības shēmas
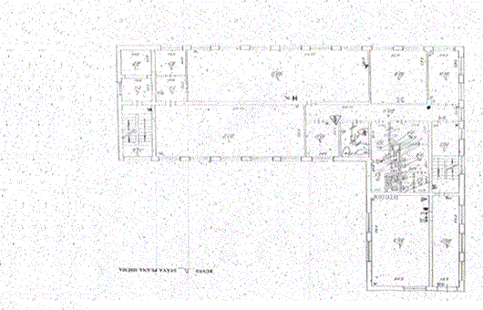
Nodrošiniet savu ēku ar skaidriem un precīziem evakuācijas plāniem, kas atbilst Latvijas valsts standartam LVS 446 un Ministru Kabineta Ugunsdrošības noteikumu 36. punkta prasībām.
- Ātri un kvalitatīvi izstrādājam cilvēku evakuācijas plānus ēkām, kur vienlaikus uzturas vairāk nekā 50 cilvēki.
- Veidojam ugunsdzēsības ūdensņemšanas vietu un hidrantu izvietojuma shēmas, kā arī norādām piebraukšanas ceļus atbilstoši LVS 446 prasībām.
- Profesionāls un precīzs izpildījums, lai jūsu objekts atbilstu ugunsdrošības normatīviem.
Neatstājiet drošību nejaušības ziņā – sazinieties ar mums jau šodien.
Gatis Beķis: EOL ugunsdrošības sistēmu speciālists
Gatis Beķis ir pieredzējis profesionālis ar vairāk nekā 15 gadu pieredzi ugunsdrošības sistēmu jomā, kas sniedz augstas kvalitātes risinājumus gan maziem, gan lieliem objektiem. Viņa dziļās zināšanas un rūpīgā pieeja ļauj nodrošināt drošību visdažādākajās situācijās, no ikdienas uzraudzības līdz sarežģītiem un ārkārtas gadījumiem. Gatis ir izveidojis sev vārdu kā uzticams eksperts, kas palīdz uzņēmumiem un privātpersonām izvēlēties un ieviest visefektīvākās ugunsdrošības sistēmas, garantējot, ka viņu īpašumi un cilvēki ir pilnīgā aizsardzībā.





